Bau einer Regenwasserbehandlungsanlage (RWB) in Gelsenkirchen-Springbach

Auftragseingang

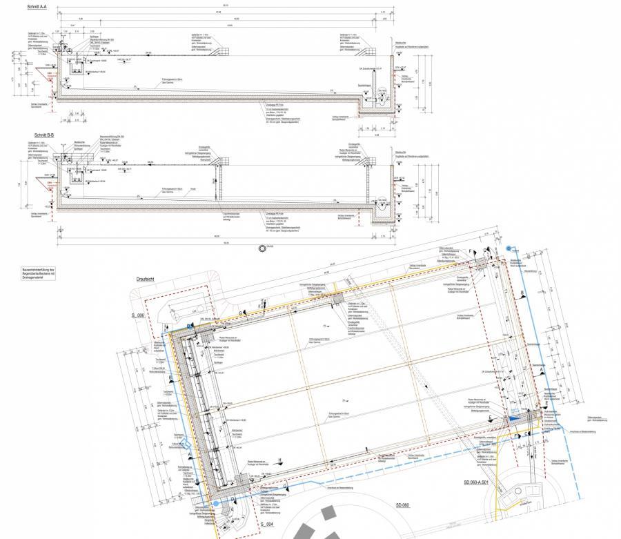
Am 21.01.2019 erhielten wir von der Emschergenossenschaft den Auftrag für den Bau einer Regenwasserbehandlungsanlage (RWB) in Gelsenkirchen-Springbach. Das Bauprojekt führen wir gemeinsam mit unserem ARGE-Partner Firma Bernhard Heckmann GmbH & Co. KG aus Hamm durch.

Das Projekt ist Bestandteil des Umbaus des Emschersystems und der Entflechtung der Schmutz- und Reinwassersysteme für die Einzugsgebiete an der Emscher. Der Auftrag umfasst im Wesentlichen folgende Bauleistungen:

  • Herstellung eines Regenüberlaufbeckens mit einem Behandlungsvolumen von rund 4.800m³
  • Herstellung eines Trennbauwerkes im Schutze einer Bohrpfahlwandbaugrube (D = 15,50 m, Tiefe rd. 11 m)
  • Herstellung eines Mess- und Drosselschachtes (D = ca. 10m, Tiefe rd. 15 m).
  • Herstellung der Zu- und Ablaufkanäle DN 1400 GFK (Länge rd. 250 m) in offener Bauweise
  • Herstellung einer Vortriebshaltung DN 600 StB (Länge rd. 90 m) als Micro-Tunneling
  • Herstellung von verschiedenen Schachtbauwerken in Ortbetonbauweise

Unsere Gewerke:

Beton- und Stahlbetonarbeiten, Maurerarbeiten, Schlosserarbeiten

Bauzeit:

Die Arbeiten beginnen im Februar 2019 und enden voraussichtlich im Dezember 2020.

Auftragssumme:

Die Auftragssumme (Anteil Hofschröer) beträgt ca. 3,0 Mio € (brutto).